行业新闻

联系我们
苏州联贯建筑材料有限公司
联系人:孙经理
电话:15506212111
地址:江苏省常熟市古里镇芙蓉村

行业新闻

剪力墙结构拉缝工艺做法
作者: admin 来源: 本站 时间:2021-07-01

剪力墙结构拉缝工艺做法

  建筑主体结构接缝包括接缝和裂缝。其中接缝大多是设计设置的连接不同材料、构件或分割统一构件的规则缝隙;裂缝一般是意外发生的、走向和形状不规则的。

  1、预制剪力墙的顶面、底面和两侧面应处理为粗糙面或者制作键槽,与预制剪力墙连接的地梁上表面和圈梁上表面也应处理为粗糙面。粗糙面露出的混凝土粗骨料不宜小于其最大粒径的1/3,且粗糙面凹凸不应小于6mm。

  2、对高层预制装配式剪力墙结构,楼层内相邻预制剪力墙的连接应符合下列规定:

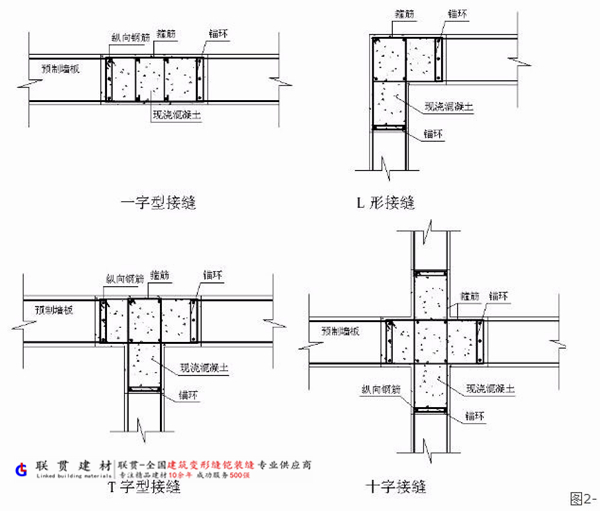
  1)边缘构件应现浇,现浇段内按照现浇混凝土结构的要求设置箍筋和纵筋;预制剪力墙的水平钢筋应在现浇段内锚固,或者与现浇段内水平钢筋焊接或搭接连接。构造如图2-1所示。

剪力墙结构拉缝工艺做法.jpg

  2)相邻预制墙片之间如无边缘构件,应设置现浇段,现浇段的宽度应同墙厚,现浇段的长度,当预制剪力墙的长度不大于1500mm时不宜小于150mm,大于1500mm时不宜小于200mm;现浇段内应设置竖向钢筋和水平环箍,竖向钢筋配筋率不小于墙体竖向分布筋配筋率,水平环箍配筋率不小于墙体水平钢筋配筋率;预制剪力墙的水平钢筋应在现浇段内锚固,或者与现浇段内水平钢筋焊接或搭接连接。构造如图2-2所示。

剪力墙结构拉缝工艺做法.jpg

  3)现浇部分的混凝土强度等级应高于预制剪力墙的混凝土强度等级两个等级或以上。

  3、对多层预制装配式剪力墙结构,楼层内相邻预制剪力墙的连接应符合下列规定:

  1)外墙转角、内墙转角、纵、横墙交接部位、相邻预制剪力墙之间应设置现浇段,现浇段的宽度应同墙厚,现浇段的长度应满足水平钢筋连接的要求;2)现浇部分的混凝土强度等级应高于预制剪力墙的混凝土强度等级两个等级或以上;3)预制剪力墙的水平钢筋应伸入现浇段;相邻墙片的水平钢筋可在现浇段内焊接连接或者锚固;现浇段内应设置竖向钢筋,配筋率不小于墙体竖向分布筋配筋率。

  4、装配式剪力墙结构每层楼面处应设置封闭的现浇钢筋混凝土圈梁,圈梁截面宽度不应小于剪力墙的厚度,截面高度不小于楼板厚度及120mm的较大值。圈梁应与现浇或者预制叠合楼盖或屋盖浇筑成整体。

  5、上下层相邻预制剪力墙的连接应符合下列规定:

  1)预制剪力墙底与现浇圈梁之间应座浆,座浆宜采用高强灌浆料或者干硬性水泥砂浆,座浆厚度不宜大于20mm,其立方体抗压强度应高于预制剪力墙混凝土立方体抗压强度10MPa或以上,且不应低于60MPa;2)预制剪力墙的竖向钢筋可采用浆锚套筒连接、浆锚搭接连接。连接构造应符合2~3条及相关规范的要求。



更多信息请访问:苏州铠装缝     江苏省铠装缝